
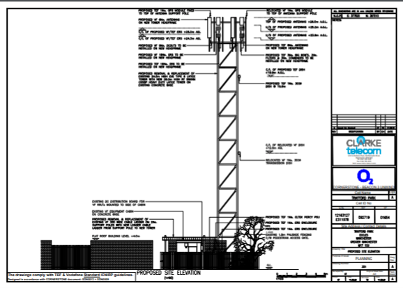
A replacement tower is proposed to be built at Astra Business Park in Trafford Park which will see the current 24 metre mast replaced with a 26.3 metre swan style tower.
If approved by Trafford Planning Committee it will come with it 12 antennas and a 0.3m width microwave transmission dish, with the new tower comes 3 new cabinets.
Due to the size of this new mast residential area will be covered including Davyhulme.
O2 (Telefonica) has a poor 5G coverage in Trafford and the mobile network is trying hard to get 5G masts built in the borough, the mobile firm also has a network sharing agreement with Vodafone.
In the first to second quarter of 2022 we should start to see the mmWave (Millimetre Wave) small cell antennas being fitted to almost every lamppost and on other infrastructure, this will increase the microwave radiation, and we will then start to see many people becoming unwell, we expect politicians to be blaming it on Covid, as with everything else to mislead the public.
One individual summed this all up in one sentemce “Ionising radiation kills you, non ionising radiation kills you slowly”
If you wish to object to this Swann tower and every other 5G mast in Trafford or just want some general advice on 5G join the group Trafford Residents against 5G
You can also view the proposal by clicking here and entering 105724/FUL/21
Discover more from
Subscribe to get the latest posts sent to your email.
