Whilst the planning lists so far in 2022 as bin a bit thin on the ground the planning meeting this Thursday is jammed pack full of housing developments that could be refused or approved.
We are not sure in which order they are to be looked at however here is the full list:
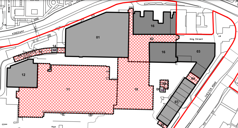
- 103844: Land at Stretford Mall and Lacey Street, Chester Road in Stretford
- 104811: City Point and Hornby Road, Chester Road in Stretford
- 105905: World of Pets, Thorley Lane in Timperley
- 106476: Pomona Wharf phase 2, Pomono in Old Trafford

The Stretford Mall/Lacey Street application will see much of the mall demolished creating a brand new Stretford Mall that will help Stretford’s economy and something people in Stretford and surrounding areas will be proud of.
If approved the demolition will start in phases, some of the mall though will be retained as you can see in the image in grey areas.
The current car parking spaces will also be reduced from the current 856 spaces to 724.
Lacey Street will have a huge housing development built, on the application saying 800 new residential units.
Further up the road more housing developments could be approved, in only a couple of miles or so the area could see more than 2000 new residential units built and this does not include the proposed housing schemes further into Old Trafford which in itself will create thousands of new apartments.
The picture of Trafford will look somewhat different in the years to come with thousands more people in the area wondering why they came for due to the poor infrastructure the borough as, although the roads around Old Trafford and Stretford will cope with traffic, its the knock on effect of other housing developments further south and west that will cause much chaos.
Medical infrastructure will have to be built, doctors now are struggling to cope and of course it will get much worse, as a member of staff from a well known clinic in Sale told us “It was not the pandemic that caused the problems of not being able to see the doctor, it was the amount of people living in the area”
Broadheath will soon swell with mega sized housing developments near Altrincham Retail Park, Partington and Carrington will suffer more due to the poor road infrastructure, pollution levels will rise, green spaces that Trafford Labour keep claiming they are trying to save continue to be dug up.
We are very concerned about school places left in this borough and the idea by some councillors for families to usher children to schools outside of Trafford is a scary thought.
Shopping will be so busy you will see more queues outside of supermarkets.
Lets see what happens on Thursday as the councillors debate the future of Stretford and the entire borough.
You can view the meeting live on Trafford Council’s YouTube channel.
Discover more from
Subscribe to get the latest posts sent to your email.
