Community hubs are set to open in Spring 2023 in mostly unused spaces at three Greater Manchester railway stations.
Altrincham, Heaton Chapel and Trafford Park will gain areas for community groups or small businesses to use.
The scheme was set up by The Station Alliance, which includes representation from Northern, Network Rail, Transport for Greater Manchester, London Continental Railway and GMCVO.

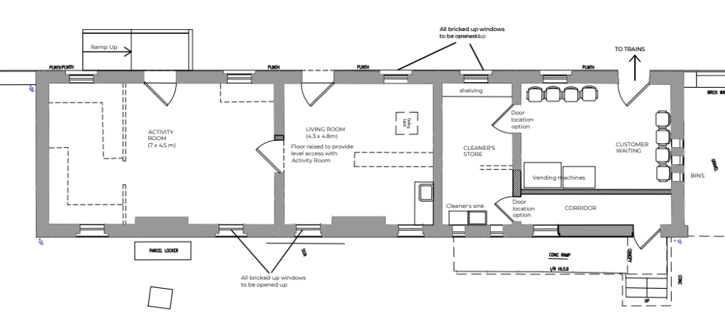
At Altrincham, an old storeroom, and the current customer information point on platform 4 will be transformed into ‘The Hub’, which will consist of two large rooms for community use.
A brand-new waiting room will also be added to the same building.
Northern staff will continue to provide assistance and information to customers on platform 4.
At Heaton Chapel, an unused area on the first floor of the main station entrance building will be used as a meeting room and workspaces for small local businesses.
While at Trafford Park, space has been found to create a room for use by local health practitioners.
Chris Jackson, regional director at Northern said: “This fantastic scheme will mean our stations will become centres for the community.
At Northern, we want our stations are more than just places to travel to and from, we want to put our customers at the heart of everything we do.”
Vernon Everitt, Transport Commissioner for Greater Manchester, said: “Stations and public transport services are at the heart of unlocking new opportunities for small businesses and residents. This excellent scheme provides much needed space at stations for people to collaborate on ideas and projects and are a very welcome new focal point for our local communities.”
Discover more from
Subscribe to get the latest posts sent to your email.
