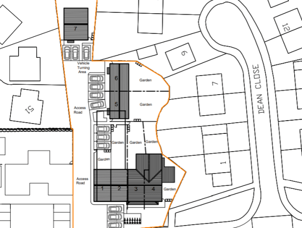
Beech House on Manchester Road Partington could soon be bulldozed and 7 new homes built if proposals are approved.

The care home will be bulldozed and new houses built including new car parking spaces.
Some residents are not that happy about the plans, with one resident saying that they are concerned about noise issues from builders and from the new houses once built.
We can confirm to that same resident that the sizes of the houses will be:
- Type A : 111sqm/1198sqft
- Type B: 76sqm/818sqft
- Type C: 75sqm/807sqft
The new homes it seems will not be affordable accomodation.
If approved by Trafford councillors, it will mean yet more cars, nore of Partington’s resources further drained and more pollution.
Discover more from
Subscribe to get the latest posts sent to your email.
